Schützengilde Ebersbach e.V.
wird verwaltet von Roland Albig
Über uns
Wir sind ein Sportschützenverein, der neben den klassischen Sportwaffendisziplinen nach der Sportordnung des Deutschen Schützenbundes seit ein paar Jahren auch ein kontinuierlich wachsende Bogenabteilung hat. Der Schießsport fördert Konzentration, Disziplin und bietet auch einen willkommen Ausgleich zum aufgeregten Alltag. Durch den Bogensport können wir Angebote für fast alle Altersklassen und auch für Menschen mit Behinderung bereitstellen. Qualifizierte Trainer sorgen für eine gute Ausbildung. Wir sind derzeit rund 220 Mitglieder.
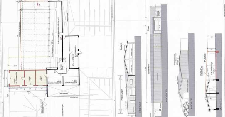
Unsere Schießanlage hat schon einige Jahre auf dem Buckel. Nun wird es Notwendig die offene 10 m Anlage für die Luftdruckwaffendisziplinen zu erneuern. Bei dieser Gelegenheit soll diese Anlage überdacht werden. Dieses Gebäude soll so angelegt sein, dass auch die Bogenschützen diesen Raum für das Training auf 18 m nutzen können und so das Training inbesondere im Winter auch auf dem Gelände des Vereins abhalten können.
Letzte Projektneuigkeit

Wir haben 26,37 € Spendengelder erhalten
Die Spendengelder wurden für den Bau der Druckluftwaffen und Bogenhalle gesammelt. Danke für die hervorragende Unterstützung des Projekts, das nun bis auf ein paar kleine Restarbeiten fertig ist und bereits Mittel letzten Jahres in Betrieb genommen werden konnte. Mit dem beantragten Spendenabruf schließen wir das Projekt ab.
Kontakt
Stuttgarter Straße 171
73061
Ebersbac an der Fils
Deutschland